ID CP2592693

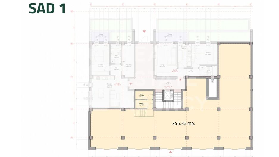
Vânzare, spațiu comercial, 245 mp, Torontal, Timișoara

ID CP2592693

473,545 € + 21% TVA

Spațiu comercial de vânzare
Torontalului, Timisoara
245.36 mp
2025

Complexul Rezidențial inspiră un mod unic de a locui în Timișoara, combinând confortul unei locuințe moderne cu luxul și facilitățile unui resort de 5 stele.

Ansamblul nostru rezidențial se distinge prin dotări moderne, finisaje premium și o arhitectură impresionantă. Casa scării, amenajată elegant, în stil italian, vă întâmpină cu o atmosferă rafinată, reminiscență a unui hotel de lux.

Spațiul comercial este amplasat în cea mai căutată zonă pentru investiţie şi locuire din Timişoara.

- La 5 minute de Spitalul Premiere

- La 6 minute de USAMVB

- La 7 minute de Auchan, Decathlon, Hornbach, Selgros, Ikea

- La 8 minute de Iulius Town

- La 10 minute de Piaţa Unirii

Finisaj fațadă

- Pereții exteriori sunt realizați din cărămidă cu o grosime de 30 cm

- sistem termoizolant cu polistiren 10 cm grosime și placați cu plăci ceramice de dimensiuni mari (120x280cm și 6mm grosime).

- Tâmplărie exterioară

- Tâmplărie realizată din aluminiu cu geam termopan cu sticlă securizată.

- Amenajare exterioară

- Pentru amenajarea spațiilor exterioare se folosesc pavaje adecvate, destinate traficului pietonal sau auto, în funcție de locație.

- Iluminatul exterior al clădirii este asigurat prin intermediul corpurilor de iluminat de tip led.

- Terenul se va nivela la cota finală perimetral bloc, prin umplutură cu pământ și se va realiza amenajarea peisagistică.

- Pereții de separare între spațiile comerciale și spații comerciale/casa scării sunt compuși din două ziduri de cărămidă cu un strat de vată bazaltică între ele.

- Tencuiala pe pereții de închidere este de tip tencuială mecanizată.

- Instalații încălzire și electrice

- Vor fi dimensionate și configurate în funcție de destinația finală a spațiului comercial, având alimentare electrică trifazată, cu o putere instalată de 50 kW.

Eventualele rețele/circuite speciale: sonorizare, sisteme antiefracție, etc., reprezintă lucrări care ies de sub incidența dotărilor standard, ele putându-se realiza ulterior recepționării spațiului comercial de către promitentul - cumpărător. De asemenea pachetul standard nu cuprinde corpuri de iluminat.

Citește mai mult

  • Tip imobil
    Bloc de apart.
  • Etaj
    Parter
  • Număr camere
    1
  • Număr băi
    1
  • Suprafață utilă
    245.36 mp
  • Disponibilitate
    Imediat
  • Compartimentare spațiu
    Open space
  • An construcție
    2025
  • Construcție nouă
    Da
  • Mod de dobândire
    Contract

Facilități

Apă
Canalizare
Contorizare separată
Curent
Gaz
Parcare deschisă
Sistem de ventilație
Vedere spre oraș
Vestiar
Ion Golban
Agent imobiliar

+40 775 343 637


Solicită chiar acum o vizionare
Nume
Telefon
Email
Sună acum Solicită vizionare
Necesare:

Site-ul nu poate funcționa corect fără aceste cookie-uri. Vezi cookie-urile

Statistică:

Strângem statistici anonime despre voi, vizitatorii unici, pentru a vă îmbunătăți experiența dumneavoastră. Vezi cookie-urile

Marketing:

Pentru a ne promova mai eficient serviciile noastre, folosim cookies pentru a vă identifica și a vă oferi proprietăți și servicii personalizate. Vezi cookie-urile

Acest site folosește cookies, află detalii. Alege ce tipuri de cookies dorești să permitem: