ID CP2697510

Vânzare, studio, București

ID CP2697510

62,034 € + 21% TVA

Apartament cu 2 camere de vânzare
Metalurgiei, Bucuresti
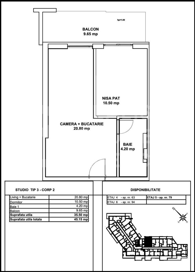
37.15 mp
2025

Descoperă un ansamblu rezidențial modern ce îmbină eleganța, confortul și proximitatea față de principalele puncte de interes din sudul Capitalei— la doar câteva minute de principalele centre comerciale (Grand Arena, Metro, Jumbo, Auchan, Lidl, Kaufland) și zone verzi generoase precum Parcul Tudor Arghezi.

Proiectul este format din două corpuri rezidențiale (S+SUPANTA SUBSOL+P+6E+7/8 DUPLEX ), ce însumează:

• 212 unități locative (garsoniere, apartamente cu 2, 3 și 4 camere)

• 282 locuri de parcare (individuale și pachete Family)

• 72 boxe de depozitare individuale și spații comune dedicate (cărucioare, administrație)

• Spații comerciale moderne la parter și supantă, cu acces direct din exterior

Tipuri de locuințe:

• Garsoniere: 35–40 mp utili, balcoane generoase, bucătării închise

• Garsoniere duble: 40–48 mp utili, zone de dormit spațioase

• Apartamente 2 camere: 48–65 mp utili, 13 tipuri de compartimentări

• Apartamente 3 camere: 65–100 mp utili, dormitor matrimonial cu baie proprie

• Apartamente 4 camere: 85–120 mp utili, 2–3 băi, terase largi

Toate unitățile beneficiază de posibilitatea personalizării finisajelor!

Calitate în execuție:

• Structură pe cadre de beton armat

• Zidărie exterioară Porotherm, interioară din BCA fonoizolant

• Izolație termică 10–15 cm, tâmplărie PVC tripan 5 camere

• Încălzire în pardoseală, centrală termică de bloc și contorizare individuală

• Două lifturi moderne, adăposturi ALA, interfon și sistem de securitate

Finisaje interioare:

• Parchet 8–10 mm cu plintă

• Gresie și faianță în băi și bucătării

• Tavane extensibile Barissol

• Uși interioare cu toc reglabil

• Ușă metalică la intrare

• Obiecte sanitare ceramice premium

• Prize și întrerupătoare moderne

• Balcoane și terase finisate cu sticlă securizată, tablă sau cărămidă

Facilități ale ansamblului:

• Spații comerciale, food court, cafenele, florării, bănci, farmacii

• Zone de fitness în aer liber, locuri de joacă pentru copii, spații de relaxare

• Spa & Wellness Center (piscină, saună, salină – în Corp 2)

• Alei pietonale și auto amenajate, iluminat ambiental și peisagistică completă

• Mobilier urban de calitate în zone verzi delimitate de vegetație

Anul finalizării construcției și predării imobilului: august 2026.

Pentru mai multe detalii, contactați agentul nostru.

Citește mai mult

  • Tip apartament
    Apartament
  • Număr camere
    2
  • Dormitoare
    1
  • Număr bucătării
    1
  • Număr băi
    1
  • Etaj
    3
  • Suprafață utilă
    37.15 mp
  • Suprafață totală
    46.75 mp
  • Disponibilitate
    Imediat
  • Anul finisării
    2026
  • Număr balcoane
    1
  • Imobil
    Bloc de apart.
  • Stadiu construcție
    În construcție
  • An construcție
    2025
  • Tip construcție
    Beton
  • Număr etaje clădire
    8

Facilități

Apă
Boxă la subsol
Canalizare
CATV
Curent
Curte comună
Facilități sportive
Gaz
Iluminat stradal
Internet
Izolație exterioară
Izolație interioară
Lift
Loc de joacă copii
Mijloace de transport în comun
Saună
Străzi asfaltate
Telefon
Ușă intrare metal
Cristina Poștaru - Realist Estate Agency
Cristina Poștaru
Agent Imobiliar

+40 775 374 132


Solicită chiar acum o vizionare
Nume
Telefon
Email
Sună acum Solicită vizionare
Necesare:

Site-ul nu poate funcționa corect fără aceste cookie-uri. Vezi cookie-urile

Statistică:

Strângem statistici anonime despre voi, vizitatorii unici, pentru a vă îmbunătăți experiența dumneavoastră. Vezi cookie-urile

Marketing:

Pentru a ne promova mai eficient serviciile noastre, folosim cookies pentru a vă identifica și a vă oferi proprietăți și servicii personalizate. Vezi cookie-urile

Acest site folosește cookies, află detalii. Alege ce tipuri de cookies dorești să permitem: