ID CP2489434

Vânzare, teren intravilan cu PUZ aprobat – Regim P+10

ID CP2489434

450,000 €

Teren de 4,528 mp de vânzare
Triaj, Brasov
4,528 mp

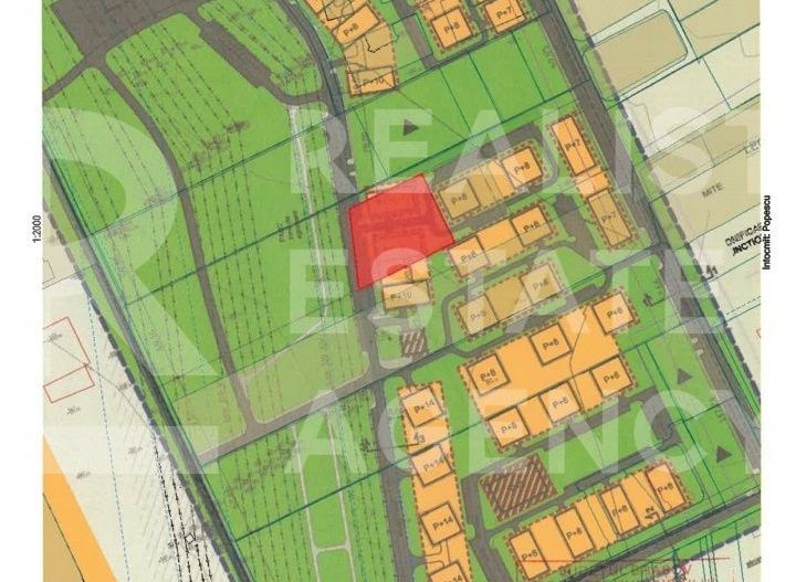
Se oferă spre vânzare teren intravilan cu suprafața de 4.528 mp, situat în zona Triaj, pe strada Narciselor, în imediata apropiere a complexului Soho, zonă aflată în plină dezvoltare urbană.

Terenul beneficiază de certificat de urbanism, care permite construcții cu regim de înălțime P+10 etaje, fiind ideal pentru dezvoltări rezidențiale, mixte sau comerciale. Indicatorii urbanistici sunt foarte avantajoși:

POT: 40%

CUT: 3

PUZ aprobat

Amplasarea este una strategică, cu acces facil la principalele artere de circulație, mijloace de transport în comun, centre comerciale, școli și alte puncte de interes. Zona oferă potențial ridicat de investiție, datorită dezvoltărilor imobiliare recente și cererii crescute pentru locuințe moderne.

Terenul este potrivit pentru proiecte de anvergură, reprezentând o oportunitate excelentă pentru dezvoltatori și investitori.

Citește mai mult

  • Tip teren
    Construcții
  • Suprafață teren
    4,528 mp
  • Front stradal
    60.0 m
  • Deschidere la
    Șosea
  • Înclinație
    0 °
  • Clasificare
    Intravilan
  • Valoare incidență
    33.13
  • Disponibilitate
    Imediat
  • CUT
    3.0
  • POT (%)
    40.0
  • PUZ Aprobat
    Da
  • Certificat de urbanism
    Da
  • Număr etaje clădire
    10

Facilități

Acces auto
Apă
Canalizare
Curent
Gaz
La șosea
Oportunitate de investiții
Străzi asfaltate
Străzi betonate
Utilități în zonă
Vedere panoramică
Nicolae Crețu
Agent Imobiliar

+40 775 241 786


Solicită chiar acum o vizionare
Nume
Telefon
Email
Sună acum Solicită vizionare
Necesare:

Site-ul nu poate funcționa corect fără aceste cookie-uri. Vezi cookie-urile

Statistică:

Strângem statistici anonime despre voi, vizitatorii unici, pentru a vă îmbunătăți experiența dumneavoastră. Vezi cookie-urile

Marketing:

Pentru a ne promova mai eficient serviciile noastre, folosim cookies pentru a vă identifica și a vă oferi proprietăți și servicii personalizate. Vezi cookie-urile

Acest site folosește cookies, află detalii. Alege ce tipuri de cookies dorești să permitem: