ID CP2933412

Clădire P+3– Ideală pentru cazare muncitori, Brașov

ID CP2933412

950,000 € (negociabil) + 21% TVA

Proprietate specială de vânzare
Carierei, Brasov
1,289 mp
1978

Oportunitate pentru investitor care caută activ generativ într-o zonă aflată în plină dezvoltare logistică și rezidențială.

Imobil situat pe Str. Carierei, în proximitatea zonei industriale Bartolomeu, hub-urilor comerciale și șantierelor majore – poziționare ideală pentru centru de cazare muncitori în regim B2B.

DATE TEHNICE

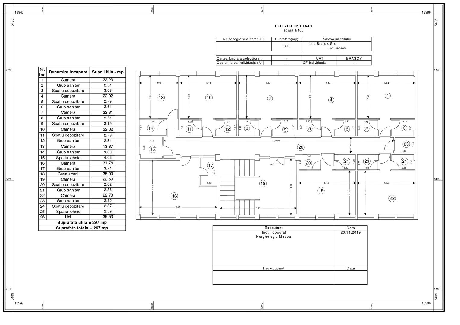
Suprafață teren: 803 mp

Suprafață utilă: 1.289 mp

Suprafață construită desfășurată: 1.778 mp

Regim: P + 3E + terasă circulabilă

Terasă: 280 mp

Înălțime interioară: 3,3 m

Structură beton (permite recompartimentare)

Centrală termică proprie

Multiple grupuri sanitare pe etaje

Acte la zi – CF actualizat 2025

Proprietate liberă de sarcini

CONFIGURAȚIE PROPUSĂ

32 camere

Capacitate optimizată: aprox. 90 persoane

Parterul poate fi transformat în: camere suplimentare, cantină, bucătărie profesională, spații administrative

Terasă de 280 mp – zonă recreere / panouri fotovoltaice

Posibilitate etaj retras (în funcție de avize)

INVESTIȚIE

Preț proprietate: 950.000 €

Buget estimativ renovare și conversie:

300.000 – 350.000 €

Investiție totală estimată:

1.250.000 – 1.300.000 €

SCENARIU FINANCIAR – 90 PERSOANE

Profit net estimat: 110 € / persoană / lună

→ 9.900 € / lună

→ 118.800 € / an

Randament anual estimativ:

9 – 9,5%

Recuperare investiție:

aprox. 10 – 11 ani

Model bazat pe contracte B2B cu firme de construcții / logistică, oferind flux financiar predictibil.

POTRIVIT PENTRU:

✔ Centru cazare muncitori

✔ Aparthotel

✔ Cămin privat

✔ Clinică / centru medical

✔ Investitor care urmărește cashflow stabil pe termen lung

Citește mai mult

  • Număr terase
    1
  • An construcție
    1978
  • Număr etaje clădire
    3
  • Suprafață construită
    1,569 mp
  • Suprafață utilă
    1,289 mp
  • Suprafață teren
    800 mp
  • Compartimentare spațiu
    Parțial compartimentat
  • Disponibilitate
    Imediat

Facilități

Nicolae Crețu
Agent Imobiliar

+40 775 241 786


Solicită chiar acum o vizionare
Nume
Telefon
Email
Sună acum Solicită vizionare
Necesare:

Site-ul nu poate funcționa corect fără aceste cookie-uri. Vezi cookie-urile

Statistică:

Strângem statistici anonime despre voi, vizitatorii unici, pentru a vă îmbunătăți experiența dumneavoastră. Vezi cookie-urile

Marketing:

Pentru a ne promova mai eficient serviciile noastre, folosim cookies pentru a vă identifica și a vă oferi proprietăți și servicii personalizate. Vezi cookie-urile

Acest site folosește cookies, află detalii. Alege ce tipuri de cookies dorești să permitem: